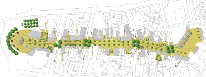
Fußgängerzone Qingdao

Qingdao

Fußgängerzone als
“Deutsche Straße”
2009

zurück

I  Home  I City Planning  I Housing Estate I Industrial Estate  I Restorations I Public Buildings I Public Spaces  I Leisure Projects I Office I News I